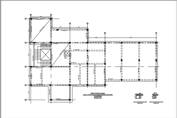
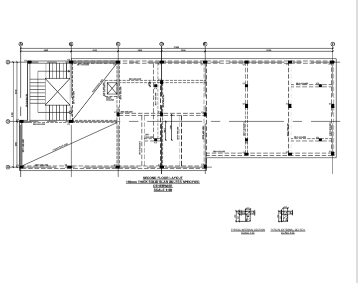
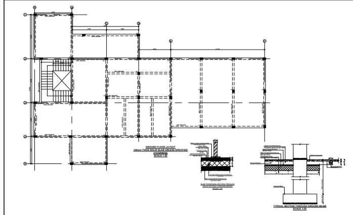
At Jazz Building Construction Ltd, our structural design solutions are built on precision and safety. We ensure every structure is designed to withstand time, stress, and natural forces. Our team engineers buildings that are not just solid, but smart—balancing cost-effectiveness with long-term strength.
We offer fully engineered structural solutions tailored to your project's specific needs. Let's build something that lasts.
Request a Consultation